人気の「平屋」の住まい
子育て世代や若年層からシニア世代まで
幅広い世代で人気の「平屋」
2階への移動がない点をはじめ、
すべての空間がワンフロアに収まり
生活動線がシンプルになります。
年齢を重ねても階段がないため、
一生住みたい家としても人気が上昇しています。

目次
間取りの自由度やデザイン性も加わり、
平屋ブームと言われるほど
新築の平屋住宅を希望する世帯が増えています。
なぜ平屋がこんなに支持されるのか
ポイントを見ていきましょう。
幅広い世代で平屋住宅が人気の理由
・上下移動が無い
・ワンフロアの暮らしやすさ
2階がないため、
すべての家事をワンフロアで
済ませることができます。
間取りを考えるときに
家事動線の無駄をなくせば、
家事の負担軽減にもつながり、
掃除も楽になります。
2階建ての場合、
2階にトイレや洗面化粧台などの水周りがあると、
1階と併せて2度お掃除をすることになります。
階段が無いため、
小さなお子様がいるご家庭でも心配がなく、
老後もバリアフリーで安心して
永く暮らすことができます。
・家族とコミュニケーションが取りやすい
生活空間がコンパクトにまとまり、
家全体も見渡しやすいので家族間の距離も近くなり、
コミュニケーションも増えます。
家族の存在を感じやすく、
同じ空間を共有している感覚を
持つことができることも、
子育て世代からも支持される理由のひとつです。
家事をしながらでもお子様の様子を確認できるなど、
大きな安心感にもつながります。
・構造的に地震に強い
物の重心は全体の高さがあるほど上にいきます。
平屋住宅は1階のみの造りのため、
2階建てに比べると重心が低くなり、
地震の際も揺れを最小限に抑えられます。
シンプルな構造で計画できるため、
安定した建物と言えます。
・広々とした空間にすることができる
2階が無い分、天井を高くしたり、
大きめの窓を設けたりすることで、
広々とした開放感のある空間をつくることも可能です。
開口部を広くとることで、
より風通しの良い環境をつくることもできます。
おうち時間が増えた今、
快適な空間で過ごすことは
ストレスの削減にもなりますね。
|
大きな窓で光がたくさん入り、 部屋の中も明るいです。 |
天井高3mの広々とした空間。 |
平屋は高い?諦めるのは早いかも。
たくさんのメリットも多い平屋住宅ですが、
一方で「平屋は高いし…」と
諦める人が多いのも事実です。
確かに、平屋はワンフロアに生活空間を収めるので、
ある程度の土地が必要になります。
また、2階建てに比べると
坪単価が高くなる傾向もあります。
しかし、階段が必要ない・廊下の削減・
足場工事が少ない・2階のトイレがない…など、
費用を抑えられる要素もいくつかあります。
普段は使わない個室や和室などは本当に必要か、
リビングダイニングの広さは適切かなど、
優先順位を決めて計画を進めることもポイントです。
部屋数によっても異なりますので、
一概に「平屋は高い」とも言えません。
さらに、メンテナンス費用を抑えやすい
といった面もあります。
大切なのは、予算内で実現できる平屋の建築を
計画することではないでしょうか。
譲れない点と妥協できる点を洗い出し、
打ち合わせを重ねながら
じっくり協議することが重要です。
平屋で気を付けるべきポイント
・光と風の通りを考慮する
部屋数が増えれば壁面が増えるため、
風通しや日当たりも考慮した設計が重要です。
中央に配置されている部屋に
光をうまく取り入れることを
よく考えなければなりません。
・防犯対策をしっかりと
平屋の場合1階部分しかないため、
目隠しとなる生垣や塀がないと
外から家の中が丸見えになってしまい、
プライバシーが守られにくい点があります。
窓が多い平屋の場合は
侵入経路が多くあるというデメリットもあり、
防犯面で注意や対策が必要です。
・家族間でも大切なプライバシーの確保
コミュニケーションがとりやすい反面、
それぞれのプライベート空間が確保しづらい
ということもあります。
限られた面積でプライベート空間を
確保する工夫が必要です。
平屋の間取り紹介
当社では、お客様それぞれの
ライフスタイルに合わせて
たくさんの打ち合わせを重ねながら
設計プランをご提案しております。
こちらでご紹介するのは
ほんの一例になりますが
良ければ参考までにご覧ください。
<CASE1>
延床面積 26.5坪

①ループになります。
家で行き止まりがないのは何かと便利です。
②ウォークスルー型のシューズクロークなので、
玄関がいつもスッキリ。
シューズクロークで靴を脱ぎ、
そのまま洗面までの動線が確保されて便利!
③2方向に窓があることで風通り抜群です。
④防犯対策としてすべり出し窓を採用。
安易に侵入できず、平屋でも安心♪
光をきちんと取り込むことができ、
窓の脇を通る風もキャッチ!
窓の角度を変えるだけで、
引違い窓の何倍もの通風量を得る事が可能です。
<ウィンドキャッチ・縦すべりだし窓イメージ>

⑤壁に仕込める引き戸。
開口部も大きく、お部屋も広々と感じます。
⑥ルーバーを設置する事により、
人の視線を気にせず洗濯物を干せます。
ガラス屋根付きなので、急な雨でも安心
⑦プライバシーを確保しながら
光も取り込むことができ、効率的に換気もできます。
<地窓イメージ>

⑧シンクとコンロをわけることで
調理スペースを広く確保する事ができます。
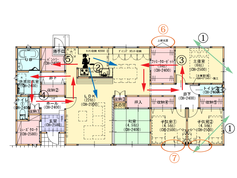
<CASE2>
延床面積 33.5坪

①風を動かすために2方向に窓を設置。
②キッチンからの視線も配慮。
小さなお子様がいても、
家事をしながら目が届けば安心です。
③ループその1。
ファミリークローゼット、とても便利です。
<ファミリークローゼットイメージ>

④ループその2。
外で汚れたときもお風呂までの動線がスムーズ。
便利な位置に収納も設置。
⑤家事動線もしっかりと確保。
⑥物を置くのに邪魔にならず、
且つ暗くなりがちなクローゼットの中にも
光を取り込むことができます。
<上部光窓イメージ>

⑦子供部屋にもしっかりと光を取り入れましょう。
平屋の施工事例
【画像をクリックで施工事例に移動します】
|
|
|
|
シンプルに暮らす 和風の平屋住宅 自然素材で叶えるデザイン平屋住宅 |
美味しい笑顔がはずむ平屋のBBQ HOUSE 天井高3mのリビングを持つ平屋 |
ご家族の生活スタイルで
何を優先していくかというのも、
間取りを考える上で大切なことです。
平屋について興味のある方は、
ぜひお気軽にお問い合わせください。







